Подстанция трансформаторная двух-столбовая СТП 250/10/0,4; СТП 250/6/0,4

Подстанция трансформаторная двух-столбовая СТП 250/10/0,4; СТП 250/6/0,4
Цена :
190000 руб.


Описание и технические характеристики

Наша компания ПанЭнергоМет уже более 15 лет занимается изготовлением и поставкой трансформаторных подстанций.

Наша компания производит следующие трансформаторные подстанции:

Подстанция трансформаторная КТП, КТПН

Подстанция трансформаторная 2КТП, 2КТПН, 2КТП

Подстанция трансформаторная передвижная, карьерная на санях

Подстанция внутренней установки

Подстанция КТПУ, 2КТПУ утепленные

Мачтовые подстанции КТПм, МТП, колхозницы

Столбовые подстанции КТПС, СТП

Железнодорожные подстанции КТПЖ

Камеры КСО

Щиты ЩО-70 и ЩО-90

И другую электротехническую продукцию.

Для заказа необходимо отправить опросный лист или схему. Или просто позвоните нам и наши менеджеры вас проконсультируют.

Срок изготовления от 5 дней.

Подстанции комплектуем трансформаторами как новыми, так и восстановленными по выбору заказчика.

Для производства подстанций используем только новые, современные комплектующие, проверенных производителей.

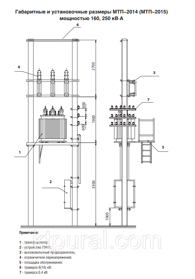
Подстанция трансформаторная двух-столбовая СТП 250/10/0,4; СТП 250/6/0,4

Столбовая трансформаторная подстанция представляет собой однотрансформаторную подстанцию, монтируемую на 2-х бетонных опорах СК-105 -10 (СВ -10,5-5) и предназначенную для приема и учета электрической энергии напряжением 10(6) кВ, 50 Гц, а так же преобразования и распределения ее по трехфазной четырехпроводной сети напряжением

0,4 кВ.

Столбовая трансформаторная подстанция служит для электроснабжения отдельных населенных пунктов, промышленных объектов, фермерских хозяйств и других аналогичных потребителей.

Нормальная работа столбовой подстанции обеспечивается при следующих условиях:


Температура окружающего воздуха от -50С до +50С.
Относительная влажность воздуха 80% при температуре +15С
Высота над уровнем моря 1000м.
Скорость ветра - не более 36 м/с при отсутствии гололеда и не более 15 м/с в условиях гололеда при толщине корки льда до 20 мм.


Столбовая трансформаторная подстанция не предназначена для работы в условиях тряски, вибрации, ударов и во взрывоопасной среде.

Конструкция КТПС должна быть надежно заземлена. Проводить эксплуатацию КТПС без защитного заземления категорически запрещается!

Все ремонтные работы на КТПС производить только со снятием напряжения и подготовкой рабочего места.

Оборудование КТПС отгружается в отдельных упаковках.

Транспортировка может производиться любым видом транспорта с соблюдением всех

предосторожностей при перевозке бьющихся грузов во время транспортирования.

При транспортировании и погрузо-разгрузочных работах нельзя допускать сильных

толчков, кантовки, ударов и т.п.

Допускается по соглашению с потребителем транспортировать оборудование без

упаковки с применением дополнительных средств, исключающих их повреждение при

транспортировании.

 Тип: столбовые   Серия: СТП   Мощность, кВА: 250   Напряжение обмотки ВН, кВ: 10   Напряжение обмотки НН, кВ: 0.4 

Здесь можно купить Подстанция трансформаторная двух-столбовая СТП 250/10/0,4; СТП 250/6/0,4 в г. Екатеринбург по цене 190000 руб.
На Энергопортал.ру представлено 872 позиции трансформаторных подстанций. Выберите лучшее предложение в нашем каталоге!

Цена действительна до 28.03.2024 г., после чего стоимость необходимо уточнить у поставщика.



Рекомендуем
Verified ПанЭнергоМет

© ООО "ИнтерМедиа" Полная версия